Higher Education News - Scanned Daily
"The larger point we are making, is that colleges and universities should do a better job at dealing with these large numbers of students that clearly can be applying themselves and developing themselves more."
Society for College and University Planning (SCUP)'s insight:
Richard Arum, interviewed by Philip DiSalvio.
Creating Community College Roadmaps for Success
In their respective communities, campus teams applied the theory of action through a variety of campus projects. They created integrated roadmaps across divisional boundaries; used various assessment strategies to build and act on available evidence of “what works”; aligned high-impact practices, student learning outcomes, and student support efforts in the curriculum and the cocurriculum; and engaged students in the process of project planning. Through communities of practice, based on specific topics (e.g., using e-portfolios, gathering evidence and measuring success, building navigable roadmaps), participating campuses were encouraged to share ideas, to explore solutions, to take risks, and to learn from failed starts. Understanding that one size would not fit all, each institution was given the support and freedom to design a context-sensitive model for student success. Each institution addressed specific areas of need in order to improve teaching and learning while strengthening pathways to completion.
Society for College and University Planning (SCUP)'s insight:
Great special issue of AAC&U's peerReview.
Notes From the Dean - Metropolis Magazine - October 2013
Parsons the New School for Design’s multidisciplinary curriculum evolves with the twenty-first century.
Society for College and University Planning (SCUP)'s insight:
Almost a decade ago at Parsons, we began reevaluating our academic programs to respond to this new context. Over the past several years we have introduced a number of graduate programs that educate designers for this era, from Transdisciplinary Design,to Design and Urban Ecologies, which explores the complex forces that influence urban growth and development. And now, this fall, our incoming freshmen are the first to take part in a redesigned undergraduate curriculum that provides greater opportunities for self-directed learning, cross-disciplinary collaboration, and exposure to academic areas beyond the traditional boundaries of art and design.
The new Parsons curriculum is about choice. Students today absorb information constantly from a variety of media and sources. The process of learning has become so multi-directional that it requires purposeful navigation.
The 10 Stealth Economic Trends That Rule the World Today
Old trends: Soaring US carbon dioxide emissions, skyrocketing medical costs, out-of-control deficits. New trends: Tumbling emissions, creeping medical costs, falling deficits.
Society for College and University Planning (SCUP)'s insight:
5. Old Trend: College is becoming more and more important.
New Trend: College is no more important than before.
If you want a good job, go to college. This has been a maxim of American life since the 1980s, when the “college premium” – the extra income boost from going to college – truly soared into the stratosphere. But an interesting thing has happened in the last decade and a half – the college premium has stagnated. College is still valuable, but by at least one measure, it's not getting more valuable each year. Perhaps that's why American college enrollment declined last year. Expect that to put a damper on skyrocketing college tuition and soaring student loans.
Students at Community Colleges Are Getting Younger and Younger
When I started teaching community college, I expected my classes to be made up of older people looking for a "second chance." I was wrong.
Society for College and University Planning (SCUP)'s insight:
With stories like this running through my head, I readied myself, read, and planned to teach to a class full of students deemed “non-traditional.”
The reality of my classroom was far different from what I expected. All four of my first-year composition courses this fall semester were made up, almost entirely, of students directly from high school. In each class, only one or two were veterans or adults over the age of 24. Age and experience-wise, my students are traditional college students.
My experience teaching younger students at community college is not unusual. More and more “traditional” students are attending community college today.
The $6 Fix That's Helping Low-Income Kids Go to College
A decade and a half ago, the ACT started giving test-takers four free score reports instead of three--a small change that's increased the number of poor students at selective schools.
Society for College and University Planning (SCUP)'s insight:
Back in 1997, the ACT--now the most popular college-entrance exam in the United States-- decided to give test-takers four free score reports instead of three. This change has had two major effects, according a National Bureau of Economic Research working paper by Amanda Pallais: It increased the number of schools both high- and low-income students applied to; it also increased the number of low-income students who attended selective colleges.
Dartmouth in the Glare of Scrutiny on Drinking
Drinking is the main focus of this story, but it also connects a number of dots as it weaves the drinking story with one of a major transition in leadership at Dartmoth, with a new president who is seeking to fill three major cabinet posts.
Society for College and University Planning (SCUP)'s insight:
There is drinking at all colleges and disagreement about the extent of problems at Dartmouth, but what no one disputes is that fraternities dominate the social scene here, putting them at the center of the debates. About two-thirds of undergraduates join a fraternity or sorority, nearly double the rate of any other Ivy League school. Besides fraternity and sorority houses, there are few indoor spaces where students can congregate, on or off campus, a fact the administration has long acknowledged, making a point of including such places in new buildings.
After last week's blog posting from David Cillay, Richard Katz (former WCET Executive Council member) and I had a great discussion via email. I invited Richard to provide his viewpoint. Richard s...
Terry Calhoun's insight:
Audacity is defined as bold or insolent heedlessness of restraints, as of those imposed by prudence, propriety, or convention. Audacity, in my experience, is not a common part of the gene set that comprises a lifelong higher education faculty or staff member. Maybe it needs to be. I shook my first to the heavens when Google announced that it would scan the collections of our great research libraries. And monetize them! For years I had argued that this is exactly what should be done – and that we should do it. Somehow we do not have the audacity, the discipline, the courage, or some other quality that we need. And maybe that’s okay. Stanford’s leadership has demonstrated again and again the benefits of turning our ideas over to others who understand better than we, how to commercialize them.
Avoid potholes on the road to implementing your strategic plan [Dean & Provost newsletter]
SAN DIEGO — Creating a strategic plan is only the beginning of a long process. Many obstacles can interfere with implementing the plan, said Hannah Stewart-Gambino, dean of the college at Lafayette College in Pennsylvania.
Administrators need to be able to identify those obstacles and understand how to overcome them, said Margaret Plympton, vice president for administration and finance at Lehigh University in Pennsylvania.
They spoke at the Society for College and University Planning’s annual international conference.
To ensure that your plan will make a difference by helping students succeed or creating a meaningful work environment for faculty members, you need to be ready to address the following impediments to its success, Plympton added.
Technology and the College Generation
Engineering students, some of whom recently lined up at 2 a.m. to sign up for job-recruiting interviews, are told, individually and in person, to check e-mail at a particular day and time to confirm their spot.
Even after all that, and the threat of their spot being given away, staff members still resort to texting some students. They respond immediately, said Amy Ratliff, senior coordinator for cooperative education.
When job offers arrive, Ms. Ratliff often has excited students turn up in her office only to realize they have forgotten a form they need to send to the company. Using e-mail to get the form or to send it apparently does not cross their minds.
“I say: ‘Do you have your phone with you? O.K., can you get e-mail on it?’ ” she said.
Ms. Ratliff added: “It’s like an out-of-body experience. These are incredibly bright kids.”
Society for College and University Planning (SCUP)'s insight:
“It’s like an out-of-body experience. These are incredibly bright kids.”
Wow. The Decline of College— [National Review] The four-year campus experience is becoming a thing of the past, says the subtitle:
The result was a more skil…
Society for College and University Planning (SCUP)'s insight:
From the comments (not the worst): "A fantastic article. Good riddance to the whole corrupt, inefficient, worthless system and the (mostly) liberal, parasitic elites who run it."
Using data from the National Center for Education Statistics, we ranked more than 900 public two-year institutions to determine the best and brightest schools.
Our rankings were based on six criteria: graduation rate; student retention rate; the student-faculty ratio; the school's in-state tuition and fees; the percentage of full-time first-time undergraduates receiving financial aid; and the average amount of grant aid they received from federal, state and private sources combined. The data cover full-time freshman students who entered college in fall 2008.
Our survey did not include private institutions, schools that did not report information on all six criteria to the National Center for Education Statistics or schools with fewer than 100 full-time students.
Society for College and University Planning (SCUP)'s insight:
From a list discussion about the article:
It looks like relatively low rates of grant/scholarship/financial aid usage and relatively high faculty-to-student ratios keep CCCs out of the top ranking in Bankrate’s methodology. It is interesting that the top ten schools seem to be mostly specialized CTE schools with well-developed connections to industry. I imagine their extreme focus helps them to achieve the kinds of results that they have. Definitely food for thought.
Week 8 of SCUP's Community & College Mojo!
Society for College and University Planning (SCUP)'s insight:
The study presented in this article examines factors contributing to wage growth for doctoral degree recipients over the time period 1999–2008 and further examines
whether wage growth over the decade differed by gender, race, discipline, and other characteristics. It answers the following research questions:
- What individual economic benefits accrue to doctoral degree recipients from the time of graduation (1999) to 2008?
- What effect does time to degree completion have on the economic benefits obtained by doctoral degree recipients?
- Are there statistical differences in the economic benefits by gender, race, citizenship, discipline of degree, and characteristics of the doctoral-degree institution?
A very timely article. Please share your comments.
SCUP Community & College Mojo Week 8— September 27–October 3, 2013
Employing College and University Credit Ratings as Indicators of Institutional Plan…
Society for College and University Planning (SCUP)'s insight:
The goal of this article is to highlight the importance of college and university credit ratings and the potential implications for higher education budgeting and planning as institutions seek out larger and larger amounts of debt.
I place particular emphasis on the use of ratings as an indicator of planning effectiveness and a tool for rethinking some strategic plans as the market for higher education continues to change. This analysis focuses on the long-term general obligation credit ratings established and reported by Standard & Poor’s (2007, 2010) and Moody’s (2007, 2011) for nonprofit colleges and universities in the United States.
Although there are currently three credit rating agencies, Moody’s, Standard & Poor’s, and Fitch, the emphasis here is on the first two given their long history of rating the nonprofit higher education sector.
What do you think of this potential?
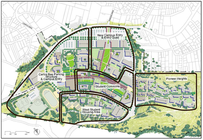
Going, Going, Gone? The Dilemma of a Midcentury Campus Building
By Keith W. Turner, AIA Demolition is violent, dramatic, and sometimes controversial. Within academic campuses especially, individuals can have strong memories of personal experiences associated w...
Reclaim Open Learning Symposium | DML Hub
Join us as John Seely Brown and other innovators Reclaim Open LearningSeptember 26-27, 2013 at CALit2, University of California, Irvine
This international convening is the culmination of the Reclaim Open Learning Innovation Challenge, committed to surfacing individuals and organizations that are transforming higher education toward connected and creative learning, open in content and access, participatory, and building on a growing range of experiments and innovations in networked learning.
– FREE AND OPEN TO THE PUBLIC –
Please feel free to follow the conversation on Twitter using the hashtag #ReclaimOpen. Certain portions of the Reclaim Open Learning Symposium will be streaming live via the DML Research Hub's YouTube Channel. Please click on the "streaming live" links below for more info. All times listed below are Pacific Time.
Society for College and University Planning (SCUP)'s insight:
Good speakers, including Anya Kamenetz.
Call for Proposals Are Open - Pick a Conference!
Call for Proposals Are Open - Pick a Conference!
Reminder: Tuesday, October 1 is the first deadline.
You've been working hard and now it's time to show off!
We are looking for proposals for the following events:
Submission Deadline: October 1
SCUP's 49th Annual, International Conference
Plan for Transformation in Higher Education
July 12–16, 2014 | Pittsburgh, PA
Learn more and submit your proposal.
Submission Deadline: October 7
SCUP 2014 Mid-Atlantic Regional Conference
Engagement for Value, Viability & Vitality
March 23–25, 2014 | Philadelphia, PA
Learn more and submit your proposal.
Submission Deadline: October 11
SCUP 2014 Pacific Regional Conference
Discover NEW MODELS (of Integrated Planning)
March 23–26, 2014 | Hollywood, CA
Learn more and submit your proposal.
Submission Deadline: October 28
SCUP 2014 North Atlantic Regional Conference
Mind the Gap: Linking Mission, Resources, Technology and Place
March 12–14, 2014 | Boston, MA
Learn more and submit your proposal.
There's not much time so start preparing today.
Thank you for helping to change higher education!
In The New York Times, 9/26/2013, David Leonhardt writes about the College Board's initiative to being more effective at identifying and facilitating talented…
Society for College and University Planning (SCUP)'s insight:
This is a trend that will affect many institutions in ways planners should be thinking about:
Transforming the landscape in Flint, Michigan
Flint gets more than its fair share of bad press because of the crime rate and the city’s financial struggles. But, Flint is also known for urban
Society for College and University Planning (SCUP)'s insight:
Very nice NPR segment (~17 minutes) that is also text readable. Kettering University is a big part of what's happening there.
Moodle MOOC 2: Habits of Effective Connected Learners
Society for College and University Planning (SCUP)'s insight:
Some SCUP staff will be in this. Hope you are, too.



